Holiday Home Jyde - 250m from the sea by Interhome - Bjerregård
Denmark beckons travelers with its enchanting blend of fairy-tale castles, pristine beaches, and vibrant cultural destinations. From Copenhagen's colorful Nyhavn harbor to the windswept dunes of Skagen, this Nordic kingdom offers unforgettable experiences for every wanderer. Beyond the capital, Aarhus captivates with its dynamic arts scene and ARoS Museum, while Billund combines family fun at Legoland with easy airport access serving nearly 4 million passengers annually. Car rentals, flights...
Holiday Home Jyde - 250m from the sea by Interhome
WiFi
Parking
WiFi
Parking
Located 38 km from Museum Frello and 49 km from Tirpitz Museum, Holiday Home Jyde - 250m from the sea by Interhome features accommodation in Bjerregård. This property offers access to a terrace, free private parking and free WiFi. The property is non-smoking and is situated 37 km from Museum of Fire-fighting Vehicles Denmark.
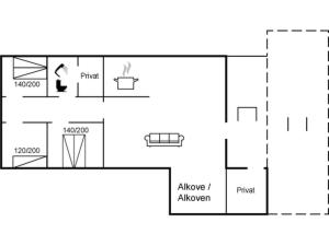
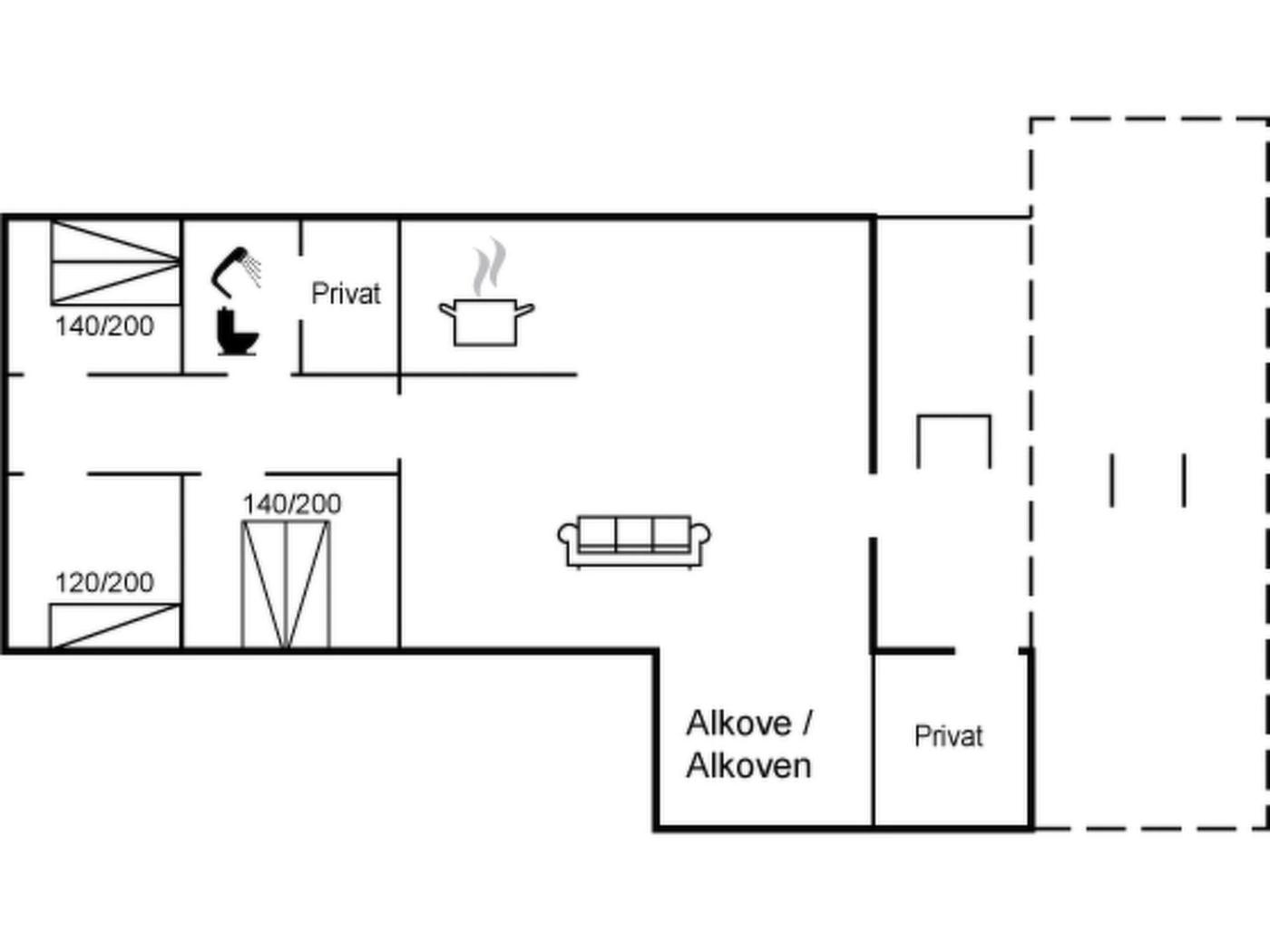
This holiday home has 3 bedrooms, a kitchen with a dishwasher and an oven, a TV, a seating area and 1 bathroom. The accommodation offers a fireplace.
Esbjerg Airport is 53 km from the property.
The hotel day starts from hour 16:00 and ends at 10:00.
1 Babycot available, charges apply. Bookings are allowed for holidays only.This property will not accommodate hen, stag or similar parties.
Please inform in advance of your expected arrival time. You can use the Special Requests box when booking, or contact the property directly with the contact details provided in your confirmation.
Please note that the full amount of the reservation is due before arrival. will send a confirmation with detailed payment information. After full payment is taken, the propertys details, including the address andto collect keys, will be emailed to you.
Holiday Home. This holiday homes standout feature is the fireplace. This holiday home includes 3 bedrooms, kitchen, a terrace and 1 bathroom with a shower. Meals can be prepared in the kitchen, which is fitted with a stovetop, a refrigerator, a dishwasher and kitchenware. This holiday home offers a seating area and a TV. The unit has 3 beds.
Parking
Parking on site
Linens, towels and laundry washed in accordance with local authority guidelines
Free WiFi
Laundry
Guest accommodation is disinfected between stays
WiFi
Physical distancing rules followed
Internet services
Contactless check-in/check-out
Free parking
Staff follow all safety protocols as directed by local authorities
Non-smoking rooms
Screens or physical barriers placed between staff and guests in appropriate areas
WiFi available in all areas
Non-smoking throughout
Private parking
